【岩倉市大市場町:岩倉】売戸建住宅


おすすめポイント
名鉄犬山線「岩倉駅」徒歩13分の好立地。
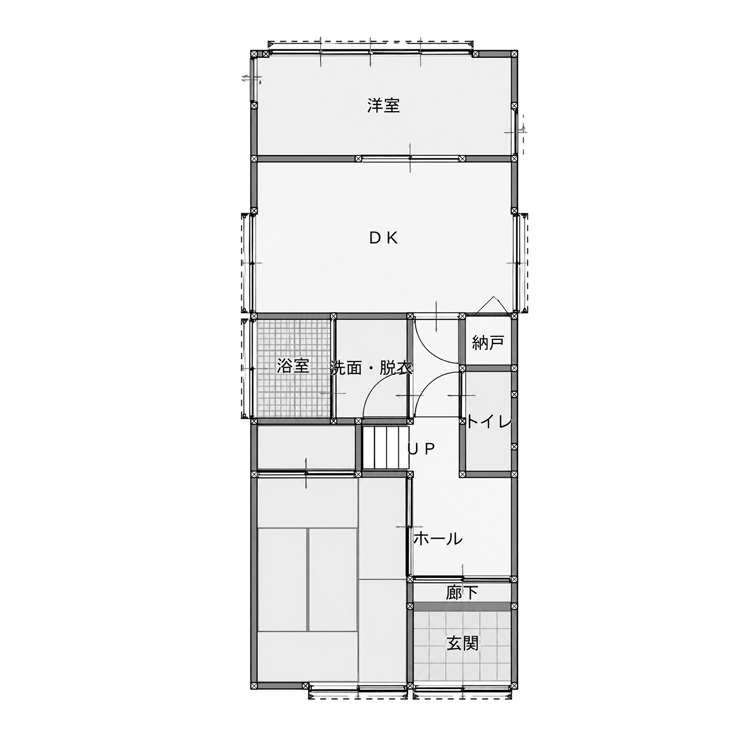
4DKのゆとりある間取りです。
価格は500万円と、戸建住宅として検討しやすい価格帯。
「初めてのマイホームを持ちたい」「費用を抑えて戸建に住みたい」という方にもぴったりです。
現在空家のため、内覧やお引渡し時期もご相談可能。
リフォーム・リノベーションで、ご自身のライフスタイルに合わせた住まいづくりを楽しめる物件です。
詳細情報
| 所在地 | 愛知県岩倉市大市場町郷廻 |
| 物件種目 | 売戸建住宅 |
| 間取タイプ | 4DK |
| 価格 | 500万円 |
| 交通 | 名鉄犬山線 岩倉 徒歩13分 |
| 土地面積 | 公簿 79.00㎡ |
| 建物:構造・ 規模 | 木造 2階建 |
| 建物:面積 | 68.67㎡ |
| 建物:間取内訳 | |
| 建ぺい率 | 60% |
| 容積率 | 200% |
| 築年月 | 1975年6月 |
| 現況 | 空家 |
| 引時渡可期能 | |
| 建番築確号 | |
| 接道状況 | 北 |
| 設備 | |
| 備考 | 図面と現状が違う場合 現況を優先します、地勢:平坦 |

